CONCRETE ALLURE

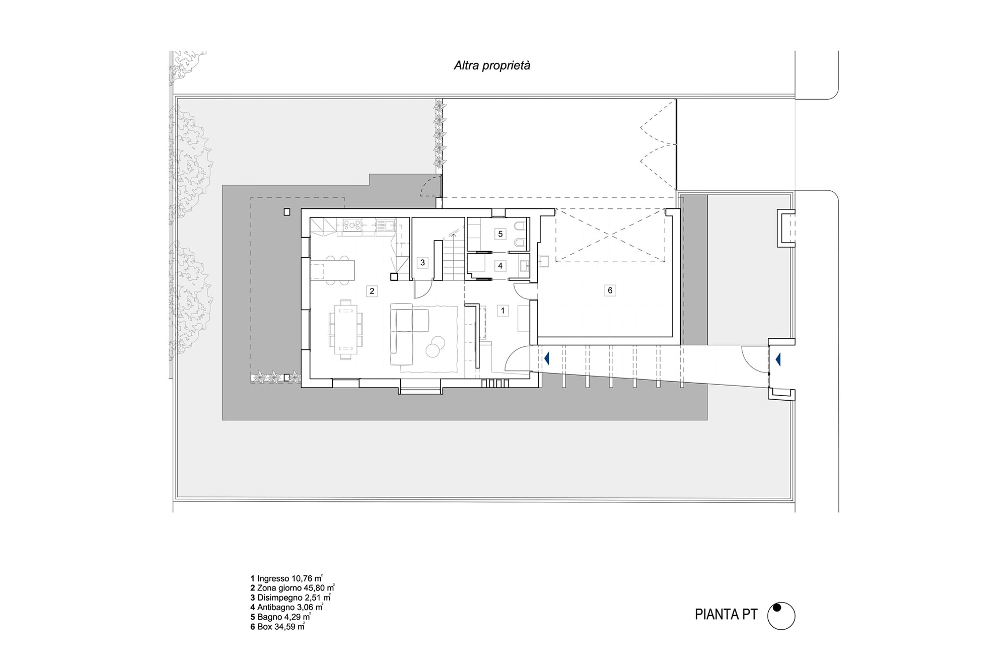
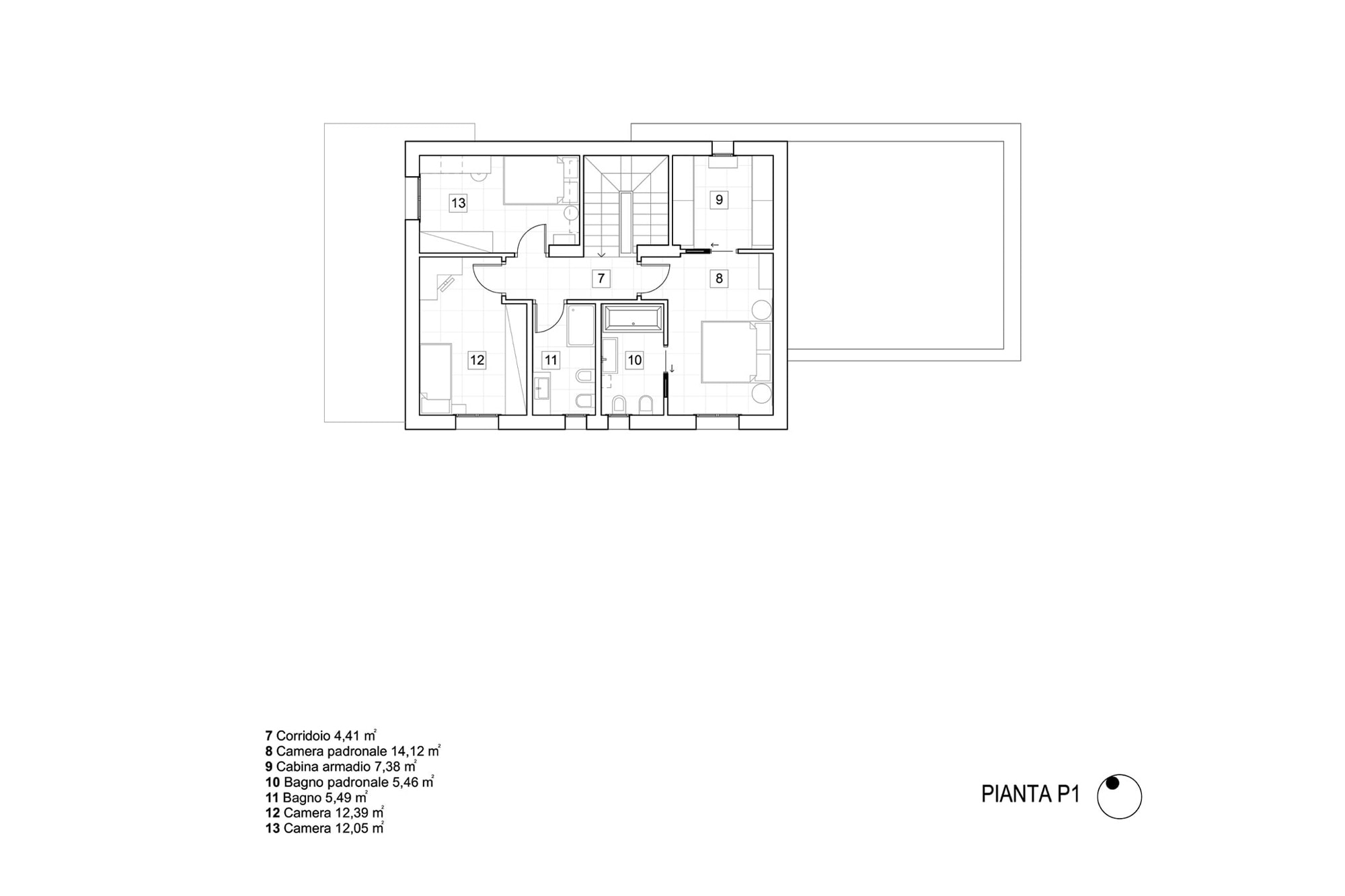
La villa singola, articolata su due piani e completata da un giardino di pertinenza, è situata in una nuova lottizzazione in provincia di Brescia. Esternamente l’elemento caratterizzante è la successione di portali in cemento a vista non rifinito. Questi elementi architettonici creano un effetto prospettico verso l’ingresso e anticipano lo stile industrial-minimal che pervade gli interni. A piano terra si è accolti in un ambiente d’ingresso che segna il passaggio da esterno ad interno grazie ad un soffitto ribassato e di colore nero. Da qui una panca effetto cemento si snoda sino alla parete della zona living, di cui diventa parte integrante. Tali soluzioni mettono in comunicazione i due ambienti, facendo risaltare per contrasto l’ampia e luminosa zona giorno. Il tavolo in legno di recupero realizzato su misura da Inventoom è protagonista, abbinato alle colorate sedie Hug di Scab. La cucina, dell’azienda Arredo3 in PET riciclato, è stata progettata dallo studio con ante effetto legno o color Amazzonia Opaco, ed un piano effetto pietra di colore nero. Una scala rivestita in gres effetto cemento come il resto dell’abitazione conduce al primo piano. Qui si trova la camera padronale, caratterizzata da uno sfondato grigio verde che, creando un effetto scatola, dona maggiore profondità all’ambiente. Il bagno en suite è di forte impatto grafico, grazie alla parete rivestita con le ceramiche Play di ABK. La zona notte si conclude con due camere singole e il bagno a loro servizio, contraddistinto da un rivestimento effetto pietra dalla grana irregolare.
 
Foto: Nicholas Fontana/Undici edizioni
Render: Studio DQA

Luogo: PROVINCIA DI BRESCIA

Anno: 2024

Progetto