EDIFICIO RESIDENZIALE 14 UNITÀ REZZATO

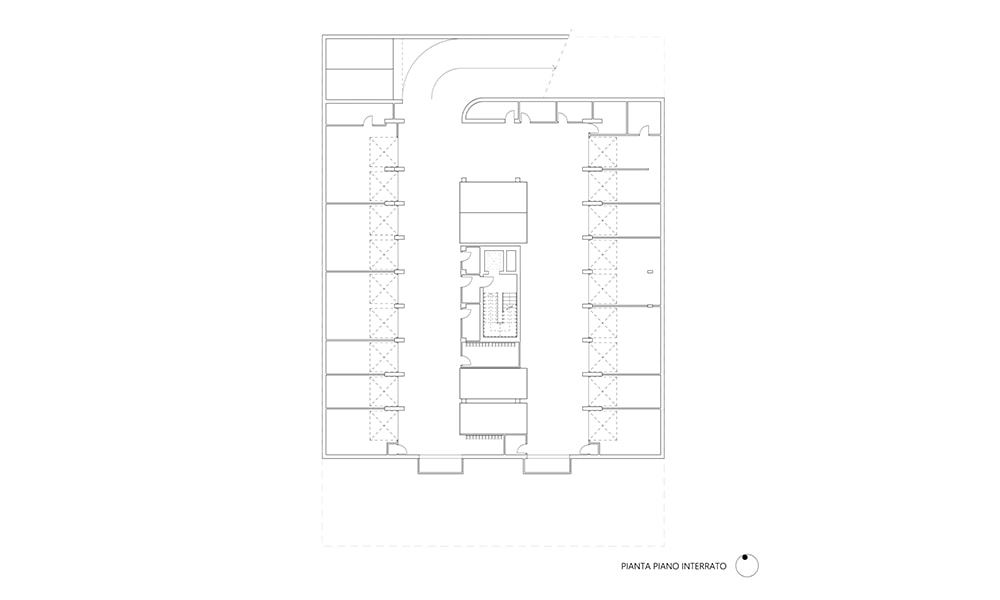
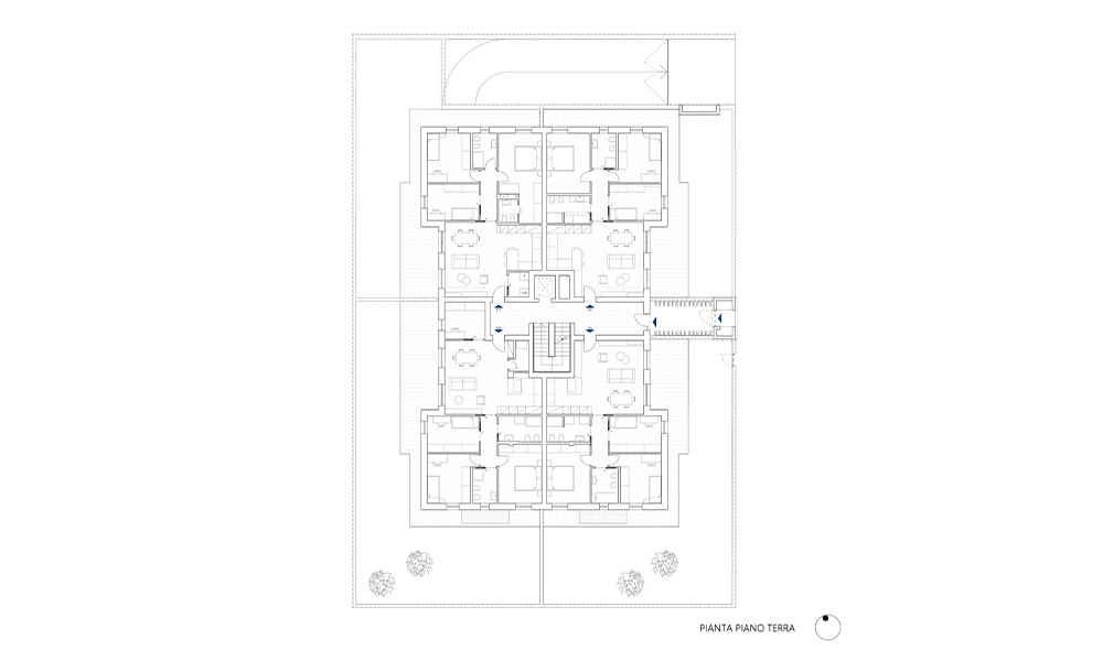
L’edificio, realizzato su incarico di un’impresa immobiliare e completato nel 2022, si inserisce in un comparto residenziale alle porte di Rezzato. La struttura ospita 14 unità abitative distribuite su tre livelli: quattro quadrilocali al piano terra, quattro trilocali e due bilocali al piano primo, e ulteriori quattro trilocali al piano secondo. La distribuzione degli alloggi è pensata per garantire varietà tipologica e una chiara organizzazione degli spazi abitativi.
 
Render: Gianni Casati

Luogo: Rezzato (BS)

Anno: 2022