VILLE UNIFAMILIARI E PIANO DI LOTTIZZAZIONE SAN ZENO NAVIGLIO

Il piano di lottizzazione, su commissione di un’impresa immobiliare, prevede la realizzazione di 27 lotti edificabili a destinazione residenziale, organizzati secondo un impianto planivolumetrico volto a definire un tessuto abitativo ordinato e coerente con il contesto. L’intervento è pensato per accogliere ville unifamiliari sviluppate su due livelli, caratterizzate da un rapporto equilibrato tra volumi costruiti e spazi aperti privati.

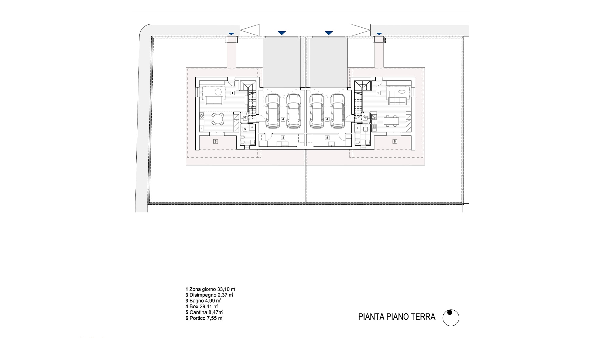
La distribuzione interna privilegia chiarezza funzionale e continuità spaziale: al piano terra si colloca la zona giorno, concepita come ambiente ampio e luminoso, affiancata da bagno di servizio, box auto fuori terra e cantina. Il piano primo ospita la zona notte, articolata in tre camere da letto e due bagni.

L’intervento mira a definire un insediamento residenziale contemporaneo, nel quale l’organizzazione degli spazi costruiti e degli ambiti aperti contribuisce alla qualità complessiva dell’ambiente abitato.

Rende esterni: Gianni Casati
Render interni: Studio DQA

Luogo: SAN ZENO NAVIGLIO (BS)

Anno: 2022-IN CORSO

Interni

Complesso residenziale